Luxurious Shop For Sale in an iconic 8-story business center in Agia Zoni,Limassol

  • Agia Zoni, Limassol
  • Ref: 31007
€3,080,000+VAT
Add to Favorites

Property details

  • Property type: Shop
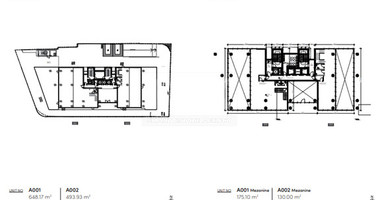
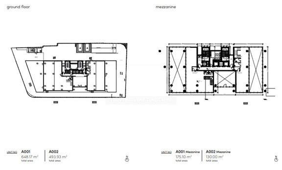
  • Total covered area: 321 m²
  • Toilets: 2
  • Floor: Ground floor
  • Floors: 8
  • Parking spaces: 8

Other information

  • Furnished: Unfurnished
  • Status: Off plan
  • Energy efficiency rating: A
  • Distance to sea: 700 m

Property description

For sale: An off-plan shop with a generous internal space of 321.42 m², located on the ground floor and offering direct street access.The shop boasts an A rating, ensuring lower operating costs and a smaller environmental footprint.

Situated in the lively Agia Zoni area, this shop benefits from high visibility and excellent foot traffic. Agia Zoni is known for its vibrant mix of businesses, residential buildings, and services, creating a dynamic environment ideal for retail, offices, or showrooms. The location provides easy access to major city routes, ensuring convenience for clients and staff alike.

The shop is brought to you by Fox Realty - Limassol/Paphos, recognized for quality service and expertise in the local real estate market. Contact us for more details about this promising investment.

Features

  • Aircondition, Provision
  • Elevator
  • Heating, Provision
  • Parking, Underground
  • Alarm system, Provision
  • Ceramic tiles
  • Easy access to main roads
  • High ceilings
  • Luxury specifications
  • Main road
  • Private bathrooms
  • Secure door

Similar properties

Retail Space with Mezzanine for sale in Agios Athanasios, Limassol

Retail Space with Mezzanine for sale in Agios Athanasios, Limassol

Agios Athanasios, Limassol
  • Ref: 31226
€3,990,000+VAT
Premium Shop Space for Sale in Iconic 6-Storey Building,in Molos,Limassol

Premium Shop Space for Sale in Iconic 6-Storey Building,in Molos,Limassol

Agia Trias, Limassol
  • Ref: 31022
€2,483,310+VAT
Premium Shop for Sale in a Prestigious 8-Storey Business Complex in Agia Zoni, Limassol

Premium Shop for Sale in a Prestigious 8-Storey Business Complex in Agia Zoni, Limassol

Agia Zoni, Limassol
  • Ref: 31008
€2,340,000+VAT
Shop for sale in Limassol City center

Shop for sale in Limassol City center

Agia Napa, Limassol
  • Ref: 26372
€3,125,000
Shop For Sale In Zakaki Limassol Cyprus

Shop For Sale In Zakaki Limassol Cyprus

Zakaki, Limassol
  • Ref: S-123575
€2,712,960+VAT
Shop For Sale In Zakaki Limassol Cyprus

Shop For Sale In Zakaki Limassol Cyprus

Zakaki, Limassol
  • Ref: S-103081
€2,767,440+VAT
Contact us