Plot 380sqm for sale 200m from the sea in the Historical Center, Limassol

  • Historical Center, Limassol
  • Ref: 28111
€950,000
Add to Favorites

Property details

  • Property type: Field
  • Plot area: 380 m²

Other information

  • Distance to sea: 200 m

Property description

The plot is located in Limassol's Historical Center, just 200m from the sea, near the Molos Promenade (200m) and Limassol Marina (2km).

It presents a strong investment opportunity, ideal for high rental yields or re-sale upon completion.

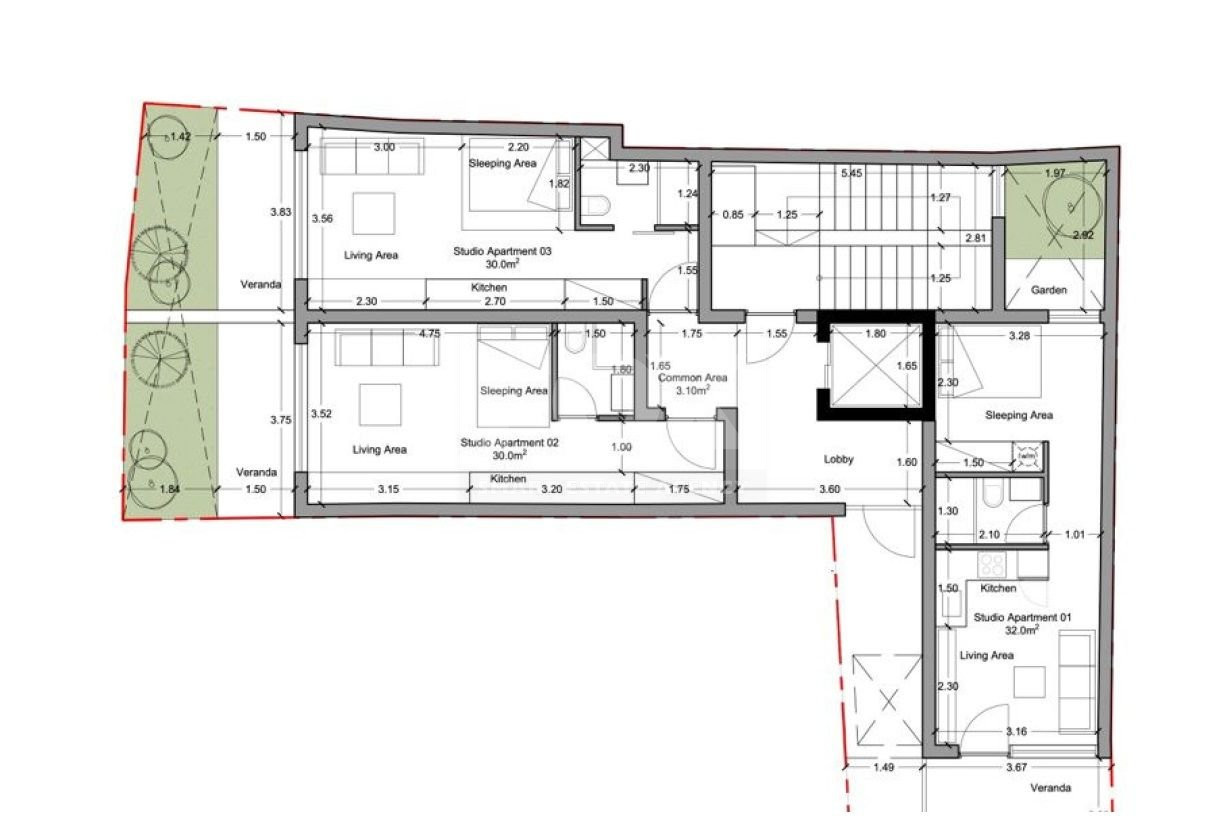
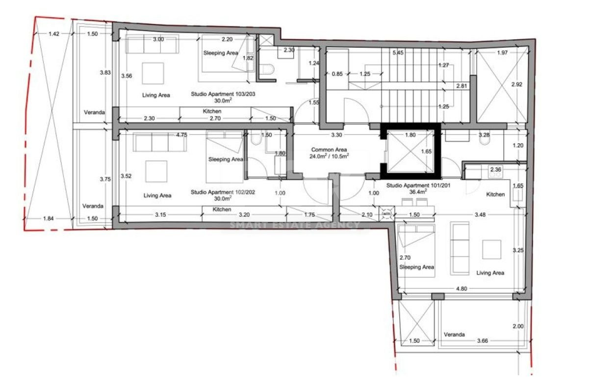
The planning application has been submitted for a development of 15 units, including 6 one-bedroom apartments and 9 studios.

As the property is held under a company, there are no VAT or transfer fees applicable.
Details:
Plot size: 380m2
Buildable area: 684m2
Building density: 180%
Units: 15

Please call for a viewing.

Similar properties

Development Land for Sale in Central Kapsalos Area

Development Land for Sale in Central Kapsalos Area

Kapsalos, Limassol
  • 515 m²
  • Build density: 140%
  • Ref: 29834
€790,000+VAT
Prime Industrial Land for Sale in Kato Polemidia – 4,014m² with High Development Potential

Prime Industrial Land for Sale in Kato Polemidia – 4,014m² with High Development Potential

Kato Polemidia, Limassol
  • 4,014 m²
  • Build density: 90%, 90%
  • Ref: 29421
€900,000
Commercial Land for Sale in Limassol City Center

Commercial Land for Sale in Limassol City Center

Apostolos Andreas, Limassol
  • 536 m²
  • Build density: 180%
  • Ref: 27510
€1,090,000+VAT
Plot of 743sqm for Sale in Potamos Germasogeias, Limassol

Plot of 743sqm for Sale in Potamos Germasogeias, Limassol

Potamos Germasogeias, Limassol
  • 743 m²
  • Build density: 80%
  • Ref: 26062
€1,200,000
Land For Sale In Agios Athanasios Limassol Cyprus

Land For Sale In Agios Athanasios Limassol Cyprus

Agios Athanasios, Limassol
  • 4,014 m²
  • Build density: 10%
  • Ref: L-50669
€900,000
Contact us