Top floor Office space available in the City Centre of Limassol

  • Agia Zoni, Limassol
  • Ref: 32264
€6,500/month+VAT
Add to Favorites

Property details

  • Property type: Office
  • Total covered area: 275 m²
  • Toilets: 3
  • Floor: 7
  • Parking spaces: 4
  • Kitchens: 2

Other information

  • Furnished: Unfurnished
  • Status: Used
  • Energy efficiency rating: A

Property description

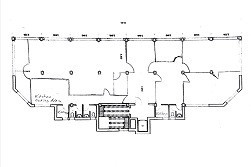
A bright and modern 275 m² top-floor office space offering panoramic views in all four directions, ideally located on Makarios Avenue, and within walking distance of restaurants, cafés, banks, and retail shops.

Key Features

Total Area: 275 m²
Top floor with excellent natural light and views
Fully renovated with new air-conditioning units
New modular carpeting throughout

Layout

1 large open-plan area (70+ m²)
2 large office rooms (40+ m² each) – ideal for meeting or training rooms
3 medium-sized offices (approx. 20 m² each)
3 additional open areas, including:
Reception/entrance area
Lunch and seating area (approx. 50 m²)

Facilities

2 kitchenettes
3 toilets
Dedicated server room
Safe
Security alarm system
Camera-controlled door access system
Parking
2 covered street-level parking spaces (suitable for small cars)
2 underground parking spaces

Minimum lease term: 2 years

Security deposit: 2 months’ rent

This office is ideal for companies seeking a prestigious, move-in-ready workspace in a vibrant and highly accessible location.

Please call to schedule a viewing.

Features

  • Aircondition, Split system
  • Parking, Underground
  • Alarm system
  • City view
  • Closed offices
  • Easy access to main roads
  • Heart of city center
  • Main road
  • Near amenities
  • Near bus route
  • Near public transport

Similar properties

For Rent Modern Office Space in the Heart of Limassol – Prime Location

For Rent Modern Office Space in the Heart of Limassol – Prime Location

Agios Georgios (Havouzas), Limassol
  • Ref: 33561
€5,000/month+VAT
Modern Fully Renovated Office for Rent – Prime Location Next to Limassol Port

Modern Fully Renovated Office for Rent – Prime Location Next to Limassol Port

Tsiflikoudia, Limassol
  • Ref: 33392
€5,500/month+VAT
Fully Renovated Office for Rent in the Heart of Limassol – Prime Location

Fully Renovated Office for Rent in the Heart of Limassol – Prime Location

Katholiki, Limassol
  • Ref: 33345
€5,500/month+VAT
RENT: OFFICES FOR RENT ON MAIN STREET KOLONAKIOU AVENUE  GERMASOGIA  WALKING DISTANCE TO ALL AMENITIES

RENT: OFFICES FOR RENT ON MAIN STREET KOLONAKIOU AVENUE GERMASOGIA WALKING DISTANCE TO ALL AMENITIES

Germasogeia, Limassol
  • Ref: 32970
€5,500/month+VAT
Premium Office Space for rent in the Heart of Limassol

Premium Office Space for rent in the Heart of Limassol

Kapsalos, Limassol
  • Ref: 32963
€4,800/month+VAT
Modern Commercial Office  for Rent in Agios Georgios Havouzas, Limassol

Modern Commercial Office for Rent in Agios Georgios Havouzas, Limassol

Agios Georgios (Havouzas), Limassol
  • 1 Baths
  • Ref: 32753
€7,500/month+VAT
Contact us