Modern Office for Sale in the Heart of Limassol Old Town – Prime Location

  • Historical Center, Limassol
  • Ref: 32267
€1,400,000
Add to Favorites

Property details

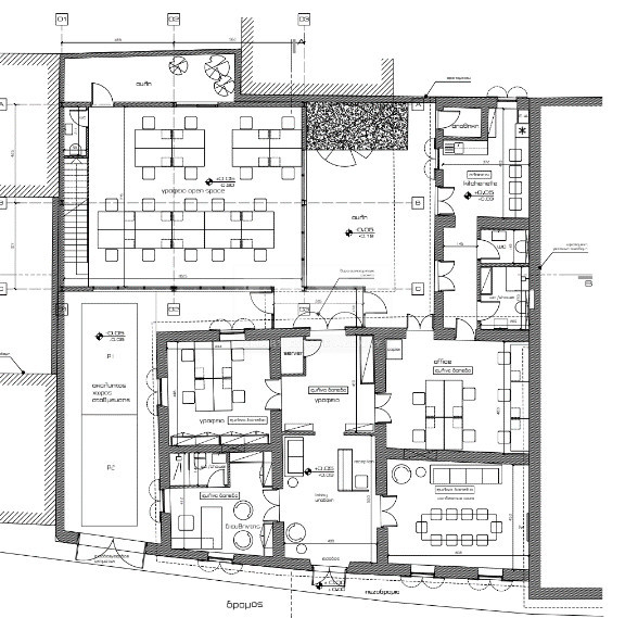
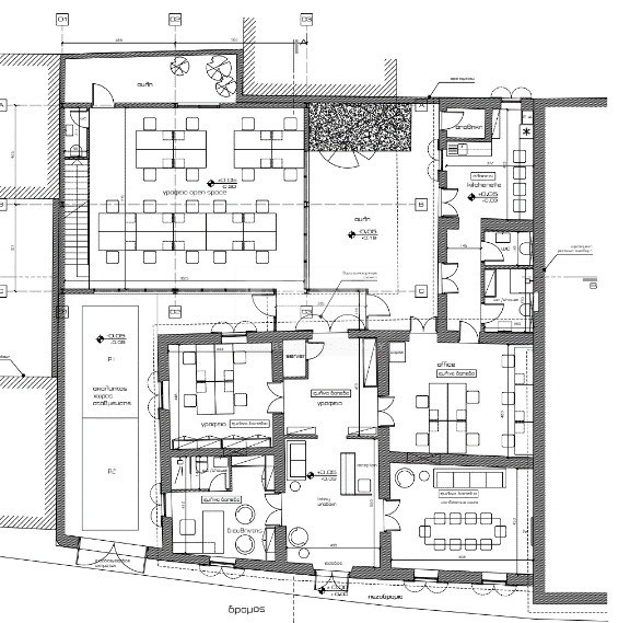
  • Property type: Office
  • Total covered area: 385 m²
  • Plot area: 427 m²
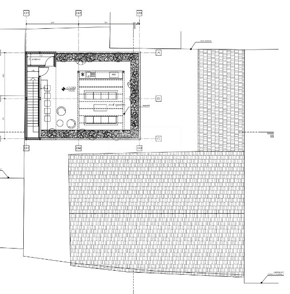
  • Roof garden area: 86 m²
  • Toilets: 5
  • Floor: Ground floor
  • Parking spaces: 2
  • Kitchens: 1

Other information

  • Furnished: Unfurnished
  • Status: Resale
  • Energy efficiency rating: Pending

Property description

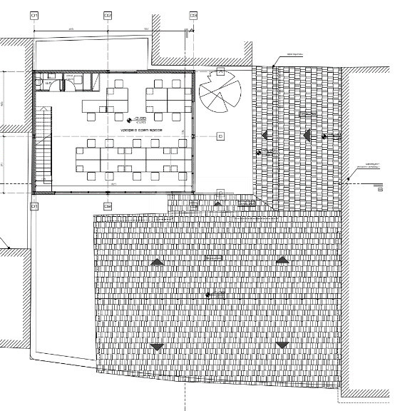
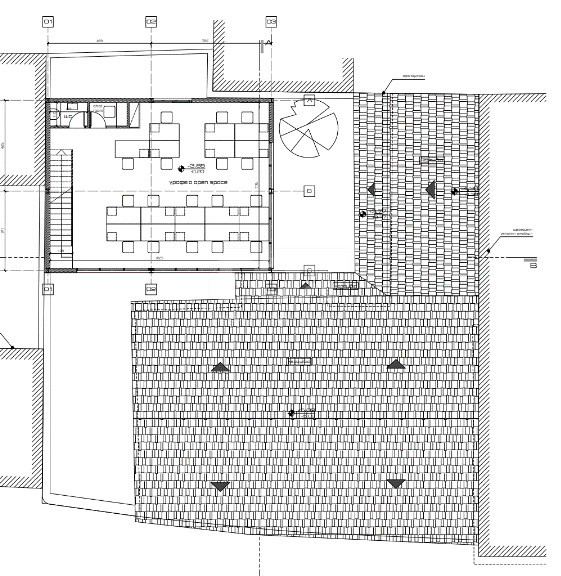
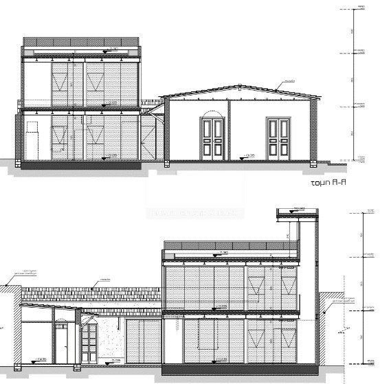
This exceptional office property, located in the vibrant and historic Old Town of Limassol, offers a unique opportunity for investors or businesses seeking a prime location in the city center. Featuring a combination of a charming listed building and new construction, this space blends historical character with modern functionality.

Key Features:

Plot Size: 427m²

Existing Listed Building: 213m²

New Construction: 172m²

Total Covered Area: 385m²

Rooftop Area: 86m²

Parking: 2 Dedicated Parking Spaces

The property is ideally located in the heart of Limassol’s bustling city center, within walking distance of essential amenities, including:

Shops

Restaurants

Pharmacies

Limassol Marina

The Sea Front

The office space also benefits from easy access to the highway, making it convenient for both local and international businesses.

Architecture & Design
The architectural plans for the property are ready, offering a modern and functional layout that maximizes the available space while preserving the charm and character of the listed building. The design includes a spacious rooftop area, perfect for hosting meetings, events, or simply enjoying the city views.

1. What is the zoning of the property?
The property is zoned for mixed-use, making it ideal for office, retail, or commercial purposes. The listed building provides an additional layer of character and historical value to the space.

2. What is the total size of the office space?
The total covered area is 385m², which includes both the existing listed building and the new construction, as well as an additional 86m² rooftop area.

3. Is the building serviced with utilities?
Yes, the property is fully serviced, including water, electricity, internet access, and modern HVAC systems to ensure a comfortable working environment.

4. Can I modify the architectural plans?
Modifications to the approved plans may be possible but would need to be approved by local authorities, especially considering the listed status of part of the building. A consultation with an architect or urban planner is recommended for any changes.

5. How many parking spaces are available?
The property includes 2 dedicated parking spaces, offering convenience for employees or visitors.

6. What are the nearby amenities?
This office is within walking distance to a wide variety of amenities, including:

Shops, cafes, and restaurants

Pharmacies and supermarkets

Limassol Marina and the Sea Front

Public transportation options

7. How far is the property from the highway?
The property is easily accessible from the highway, providing quick and convenient routes to the rest of the city and beyond.

8. Is the building fully renovated?
The listed building has been carefully restored and preserved, while the new construction has been designed with modern standards of comfort and efficiency. The space offers the best of both worlds – historical charm with contemporary functionality.

If you're looking for a stylish office space in one of the most desirable locations in Limassol, this is an incredible opportunity. Contact us today to learn more or arrange a viewing.

Features

  • Parking, Uncovered
  • Conference hall
  • Double glazing
  • Easy access to highway
  • Easy access to main roads
  • Kitchen
  • Kitchenette
  • Near amenities
  • Near bus route
  • Near public transport
  • Roof garden
  • Server room

Similar properties

Office for sale in Griva Digeni main road, Neapoli Limassol

Office for sale in Griva Digeni main road, Neapoli Limassol

Neapoli, Limassol
  • 1 Baths
  • Ref: 32081
€1,100,000
For Sale Whole Floor Medical & Doctors Office in Agios Ioannis, Limassol

For Sale Whole Floor Medical & Doctors Office in Agios Ioannis, Limassol

Agios Ioannis, Limassol
  • Ref: 31893
€1,600,000+VAT
Full-Floor Office Units for Sale in Limassol City Centre – 320m², Prime Location, 7% ROI, Excellent Condition

Full-Floor Office Units for Sale in Limassol City Centre – 320m², Prime Location, 7% ROI, Excellent Condition

Agia Trias, Limassol
  • Ref: 31843
€1,200,000+VAT
Off-plan luxury office for sale in a signature 8-story commercial development in Agia Zoni, Limassol.

Off-plan luxury office for sale in a signature 8-story commercial development in Agia Zoni, Limassol.

Agia Zoni, Limassol
  • Ref: 31015
€1,020,000+VAT
Top-Tier Office Within an Iconic Commercial Property For Sale,in Central Limassol

Top-Tier Office Within an Iconic Commercial Property For Sale,in Central Limassol

Agia Zoni, Limassol
  • Ref: 31013
€1,380,000+VAT
Luxury Office for Sale in a Signature 8-Story Business Center, Agia Zoni,Limassol

Luxury Office for Sale in a Signature 8-Story Business Center, Agia Zoni,Limassol

Agia Zoni, Limassol
  • Ref: 31011
€1,290,000+VAT
Contact us