Spacious Office Unit of a 6-Storey Building in Molos For Sale, Limassol

  • Agia Trias, Limassol
  • Ref: 31033
€4,737,540+VAT
Add to Favorites

Property details

  • Property type: Office
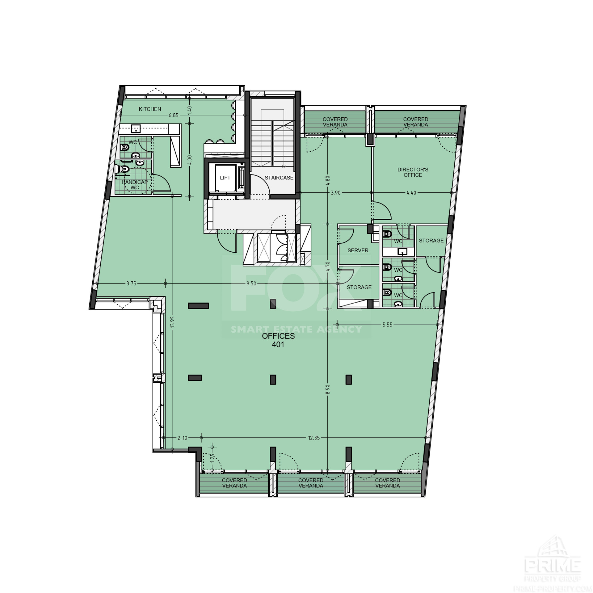
  • Total covered area: 337 m²
  • Covered veranda area: 25 m²
  • Toilets: 5
  • Floor: 4
  • Floors: 6
  • Kitchens: 1

Other information

  • Furnished: Unfurnished
  • Status: Off plan
  • Energy efficiency rating: A
  • Distance to sea: 50 m

Property description

For sale: spacious off-plan office located on the fourth floor of a modern six-story building with elevator access. Offering an internal area of 337.1 m2, this unfurnished property is designed to suit the needs of growing businesses, with flexible open-plan spaces and large windows providing an abundance of natural light.

Enjoy breathtaking, uninterrupted sea views from your office, perfectly positioned on the seafront in the desirable Agia Zoni area. Agia Zoni is well known for its excellent amenities including cafes, restaurants, shops, and banks, all within walking distance. The area is highly sought after for its business-friendly environment and vibrant commercial activity.

The office will be delivered with energy efficiency class A, ensuring low running costs and maximum comfort all year round. Whether you are looking for a new company headquarters or an investment opportunity, this workplace combines an exceptional setting with modern design.

The office comes with 2 storage rooms.

Enquire today to secure this prime commercial space, exclusively advertised by Fox Realty – Limassol/Paphos.

Features

  • Aircondition, Provision
  • Heating, Provision
  • Parking, Uncovered
  • Elevator
  • Alarm system, Provision
  • Secure door
  • Marble flooring
  • Ceramic tiles
  • Main road
  • Double glazing
  • Near public transport
  • Easy access to main roads
  • Next to green area
  • Near bus route
  • Sea front
  • Computer
  • Wireless internet
  • IT support
  • Sea view
  • Server room
  • Floor-to-ceiling windows

Similar properties

Office for sale in Mesa Geitonia, Limassol

Office for sale in Mesa Geitonia, Limassol

Agios Athanasios, Limassol
  • Ref: 30629
€3,430,000+VAT
Office for sale in Mesa Geitonia, Limassol

Office for sale in Mesa Geitonia, Limassol

Agios Athanasios, Limassol
  • Ref: 30628
€3,420,000+VAT
Office for sale in Mesa Geitonia, Limassol

Office for sale in Mesa Geitonia, Limassol

Agios Athanasios, Limassol
  • Ref: 30625
€3,710,000+VAT
Office for sale in Mesa Geitonia, Limassol

Office for sale in Mesa Geitonia, Limassol

Agios Athanasios, Limassol
  • Ref: 30624
€3,520,000+VAT
Office for sale in Mesa Geitonia, Limassol

Office for sale in Mesa Geitonia, Limassol

Agios Athanasios, Limassol
  • Ref: 30620
€3,510,000+VAT
Office for sale in Kapsalos, Limassol

Office for sale in Kapsalos, Limassol

Kapsalos, Limassol
  • Ref: 30252
€3,750,000+VAT
Contact us