Modern Commercial Business Center for Sale in Mesa Geitonia, a Prime Location in Limassol

  • Mesa Geitonia, Limassol
  • Ref: 32306
€17,500,000+VAT
Add to Favorites

Property details

  • Property type: Commercial Building
  • Total covered area: 1,892 m²
  • Plot area: 4,174 m²
  • Covered veranda area: 506 m²
  • Toilets: 16
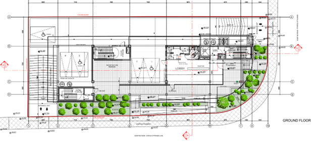
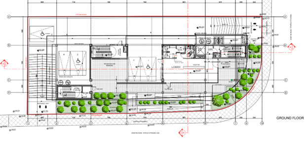
  • Floor: Ground floor
  • Floors: 8
  • Parking spaces: 29

Other information

  • Furnished: Unfurnished
  • Status: Under construction
  • Energy efficiency rating: A
  • Basement: Yes

Property description

This contemporary Class A Business Center offers a sophisticated and efficient work environment in one of Limassol’s most sought-after locations. Situated on Spyrou Kyprianou Avenue, near the Agios Athanasios roundabout, this modern business hub is perfect for companies looking for premium office spaces with exceptional accessibility and a range of luxury features.

The building’s 8 levels provide expansive office areas, including four dedicated office floors, along with impressive communal spaces and high-end amenities. With state-of-the-art finishes and cutting-edge infrastructure, this business center is ideal for businesses of any scale—from large corporations to emerging companies.

Key Project Features:

Total Area: 4,173.84 m²

Total Usable (Covered Inside) Area: 1,386.16 m²

Total Covered Area: 1,892.10 m²

Gross Above Ground Area: 2,649.24 m²

Covered Veranda/Outdoor Area: 505.94 m²

Uncovered Area (Above Ground): 374.84 m²

Number of Levels: 8 (Basement -2, Basement -1, Ground Floor, 1st to 4th Floors, Roof Garden Top)

Parking: Covered parking across two basement levels

Building Highlights:

Prime Location: Close to Agios Athanasios roundabout, providing easy access to major roads, transport links, and amenities.

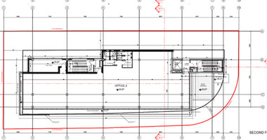
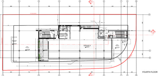
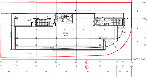
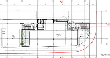
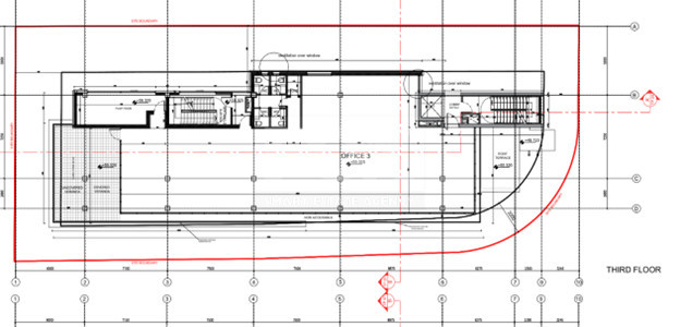
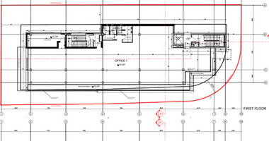
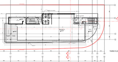
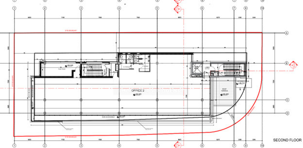
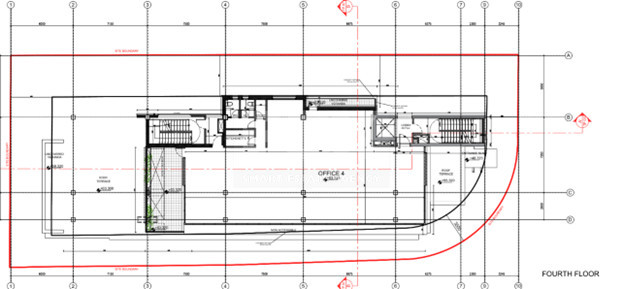
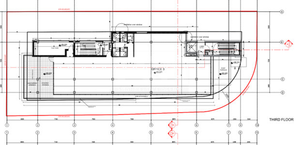
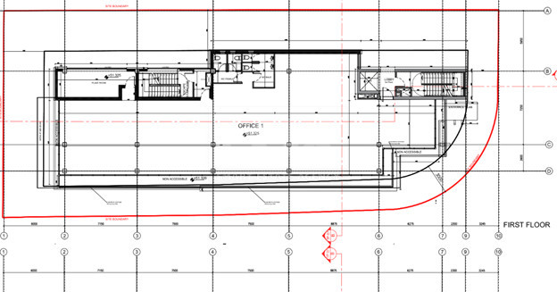
Dedicated Office Floors: Four office levels (450 m² each) designed with versatile layouts to accommodate any type of business.

Modern Lobby: A stylish, welcoming ground-floor lobby area that adds a professional touch to the building.

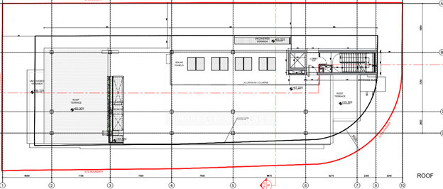
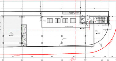
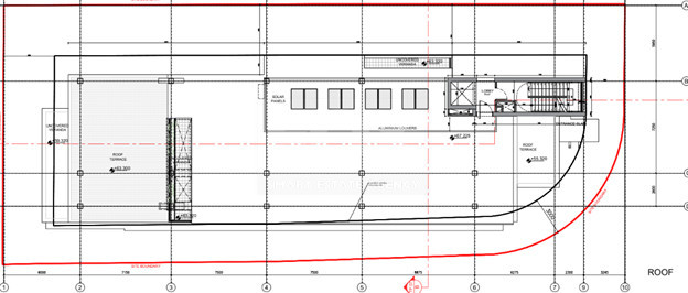
Roof Garden Top: Enjoy panoramic views and outdoor space perfect for relaxation or hosting events.

Underground Parking: Two levels of parking (Basement -1 and Basement -2) with ample spaces for tenants and visitors.

High-Quality Finishes: Featuring natural stone floors in common areas, luxury sanitary ware, ceramic tiles in WCs, and high-end kitchen cabinets.

Energy-Efficient Design: A-rated energy efficiency, with thermal insulation, energy-saving windows, photovoltaic solar panels, and more.

Technical Specifications:

Earthquake-Resistant Frame for enhanced safety and stability.

VRF Air Conditioning System combined with ventilation for optimal comfort.

Uninterruptible Power Supply (UPS) for continuous operations.

Fiber Optic Internet and high-speed data connectivity.

High-Speed Elevators with a maximum waiting time of 30 seconds.

Suspended Gypsum Board Ceilings with integrated lighting, sensors, audio speakers, and ventilation grilles.

Panoramic Glazing with sun protection, offering natural light and great views.

Energy-Efficient Features: Including thermal insulation, waterproofing, and energy-saving window frames.

Delivery: September 2026 (with a grace period for completion).

1. What is the total size of the business center?
The building spans 4,173.84 m², with a total usable area of 1,386.16 m² and covered area of 1,892.10 m². It also offers extensive outdoor and uncovered space, including a 505.94 m² covered veranda.

2. What types of office spaces are available in the building?
The business center includes four dedicated office floors (Office 1, Office 2, Office 3, Office 4), each with approximately 450 m² of space. These floors can be customized to fit any business needs.

3. How many levels are there in the building?
There are 8 levels in total, including two underground parking levels (Basement -1 and Basement -2), and floors for offices, a lobby, and a rooftop garden.

4. Is parking available for tenants and visitors?
Yes, the building provides covered parking spaces across two basement levels. Ample parking is available for both tenants and visitors.

5. What makes this building energy-efficient?
The building is designed to Energy Efficiency Class A standards, with features such as photovoltaic solar panels, thermal insulation, energy-saving window frames, and uninterruptible power supply (UPS) to minimize energy consumption and ensure sustainability.

6. What amenities are offered in the business center?
The building features high-speed elevators, fiber optic internet connections, panoramic glazing with sun protection, and a roof garden perfect for relaxation and events. Additionally, there is a luxurious lobby area and two levels of underground parking.

7. When will the business center be completed?
The business center is set for delivery in September 2026, with a grace period for final touches and completion.

8. What is the building's location?
The property is located on Spyrou Kyprianou Avenue, close to the Agios Athanasios roundabout, placing it in a highly desirable and easily accessible area in Limassol.

9. Is the project available for re-sale?
Yes, this project is being offered for re-sale, making it a unique investment opportunity for businesses or investors.

10. What types of businesses are suitable for this space?
This contemporary business center is designed to accommodate various business activities, making it ideal for corporate offices, professional services, start-ups, or co-working spaces. The versatile layouts can be tailored to suit any business need.

11. How secure is the building?
The complex is located in a gated community with CCTV security, ensuring a safe and professional environment for all tenants.

12. How can I schedule a viewing or request more information?
For more information, detailed floor plans, or to arrange a private tour of the building, please contact us today.

Features

  • Aircondition, Central system
  • Elevator
  • Parking, Underground
  • Solar photovoltaic panels
  • CCTV
  • Call center
  • City view
  • Double glazing
  • Earthquake-resistant structure
  • Easy access to highway
  • Easy access to main roads
  • Fiber optics
  • Handicap accessible
  • Lobby
  • Near amenities
  • Near bus route
  • Reception
  • Roof garden

Similar properties

SALE: COMMERCIAL BUSINESS CENTRE IN STRATEGIC CENTRAL LOCATION NEAR LIMASSOL PORT, MARINA, AND CASINO.

SALE: COMMERCIAL BUSINESS CENTRE IN STRATEGIC CENTRAL LOCATION NEAR LIMASSOL PORT, MARINA, AND CASINO.

Kato Polemidia, Limassol
  • Ref: 30886
€14,000,000
Spacious Unfurnished Commercial Building in Potamos Germasogeias, Limassol

Spacious Unfurnished Commercial Building in Potamos Germasogeias, Limassol

Potamos Germasogeias, Limassol
  • Ref: 28602
€12,500,000+VAT
Large  Commercial Building for Sale in Pano Polemidia, Limassol

Large Commercial Building for Sale in Pano Polemidia, Limassol

Pano Polemidia, Limassol
  • Ref: 28597
€13,000,000+VAT
STATE OF THE ART LUXURY NEW COMMERCIAL OFFICE BUILDING READY TO MOVE INTO IN CENTRAL LIMASSOL-PANORAMIC VIEWS

STATE OF THE ART LUXURY NEW COMMERCIAL OFFICE BUILDING READY TO MOVE INTO IN CENTRAL LIMASSOL-PANORAMIC VIEWS

Agia Zoni, Limassol
  • Ref: 26503
€15,000,000
Office Building For Sale In Limassol

Office Building For Sale In Limassol

Agios Nicolaos, Limassol
  • Ref: 25409
€22,500,000
LUXURY OFFICE BUILDING OFFERING A COVERED AREA OF OVER 2,000 SQM

LUXURY OFFICE BUILDING OFFERING A COVERED AREA OF OVER 2,000 SQM

Agios Athanasios, Limassol
  • Ref: 18428
€17,000,000+VAT
Contact us