For Sale – 3-Bedroom Garden Apartment with Roof Terrace in Green area, Germasogeia, Limassol

  • Germasogeia, Limassol
  • 3 Beds
  • 3 Baths
  • Ref: 17656
€725,000+VAT
Add to Favorites

Property details

  • Property type: Apartment
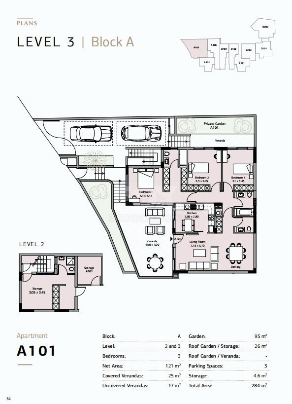
  • Total covered area: 284 m²
  • Covered veranda area: 25 m²
  • Uncovered veranda area: 17 m²
  • Garden area: 95 m²
  • Bedrooms: 3
  • Bathrooms: 3
  • Toilets: 4
  • Showers: 1
  • Floor: 2
  • Parking spaces: 3
  • Living rooms: 1
  • Kitchens: 1
  • Move in ready: 30 November 2025

Other information

  • Furnished: Unfurnished
  • Status: Under construction
  • Energy efficiency rating: A
  • Distance to sea: 2 km

Property description

Set within a serene elevated location and surrounded by stunning panoramic views, this exceptional 3-bedroom apartment is part of the exclusive new project gated community in one of Limassol’s most prestigious areas.

Designed for those seeking a blend of luxury, comfort, and functionality, this apartment features both private garden space and a rooftop terrace, along with generous living areas, elegant finishes, and access to premium communal facilities.

Property Highlights:

Internal Covered Area: 121 sqm

Covered Veranda: 25 sqm

Uncovered Veranda: 17 sqm

Private Garden: 95 sqm

Roof Garden + Storeroom: 26 sqm

Bedrooms: 3

Bathrooms: 2

Parking & Storage: Included (underground)

Project Features:

Gated community with 4 double-storey blocks

Architecturally designed and built with premium materials

Signature concrete and HPL façade with wood-look panels

Resort-style swimming pool, sun terrace & landscaped gardens

Children’s playground

Underground parking and dedicated storage for every apartment

Floor-to-ceiling windows for natural light and openness

Options for private gardens or rooftop terraces

Carefully curated interiors with luxury finishes and customization options

This is more than a home—it's a lifestyle. Whether relaxing by the pool, enjoying your spacious garden, or entertaining on your private roof terrace under the Mediterranean sun, every moment here is designed to elevate your daily living.

Features

  • Aircondition, Provision
  • Childrens playground
  • Elevator
  • Gated complex
  • Heating, Provision
  • Parking, Covered
  • Pool, Communal
  • Solar water heater
  • Storage
  • Balcony
  • Bath
  • Combined kitchen and dining area
  • Double glazing
  • Easy access to highway
  • Easy access to main roads
  • En suite shower
  • Fitted wardrobes
  • Garden
  • Guest WC
  • Guestroom
  • Handicap accessible
  • Near amenities
  • Next to green area
  • Open plan
  • Panoramic view
  • Roof garden
  • Shower
  • Shutters, electric

Similar properties

Elegant 2-Bedroom Penthouse with Private Roof Garden For Sale in Germasogeia, Limassol

Elegant 2-Bedroom Penthouse with Private Roof Garden For Sale in Germasogeia, Limassol

Germasogeia, Limassol
  • 2 Beds
  • 2 Baths
  • Ref: 33441
€575,000+VAT
2 Bedroom Penthouse for Sale in Germasogeia, Limassol | Off-Plan Roof Garden

2 Bedroom Penthouse for Sale in Germasogeia, Limassol | Off-Plan Roof Garden

Germasogeia, Limassol
  • 2 Beds
  • 2 Baths
  • Ref: 33440
€585,000+VAT
Luxury 3-Bedroom Top-Floor Apartment with Private Pool & Roof Garden | 3rd Floor | Agios Athanasios, Limassol

Luxury 3-Bedroom Top-Floor Apartment with Private Pool & Roof Garden | 3rd Floor | Agios Athanasios, Limassol

Agios Athanasios, Limassol
  • 3 Beds
  • 3 Baths
  • Ref: 33420
€760,000+VAT
Stylish Two-Bed Apartment Near Seafront in Limassol – Walking distance  to the Beach

Stylish Two-Bed Apartment Near Seafront in Limassol – Walking distance to the Beach

Neapoli, Limassol
  • 2 Beds
  • 2 Baths
  • Ref: 33312
€815,000+VAT
Stylish Two-Bed Apartment Near Seafront in Limassol – Walking distance  to the Beach

Stylish Two-Bed Apartment Near Seafront in Limassol – Walking distance to the Beach

Neapoli, Limassol
  • 2 Beds
  • 2 Baths
  • Ref: 33311
€925,000+VAT
Stylish Two-Bed Apartment Near Seafront in Limassol – Walking distance  to the Beach

Stylish Two-Bed Apartment Near Seafront in Limassol – Walking distance to the Beach

Neapoli, Limassol
  • 2 Beds
  • 2 Baths
  • Ref: 33310
€935,000+VAT
Contact us