Stylish two Bedroom Coastal Apartment in Chloraka, Paphos | Modern Design & Prime Location for Sale

  • Chlorakas, Paphos
  • 2 Beds
  • 2 Baths
  • Ref: 31930
€498,000+VAT
Add to Favorites

Property details

  • Property type: Apartment
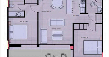
  • Total covered area: 95 m²
  • Covered veranda area: 19 m²
  • Bedrooms: 2
  • Bathrooms: 2
  • Toilets: 2
  • Floor: 2

Other information

  • Furnished: Unfurnished
  • Year of construction: 2027
  • Status: Off plan
  • Energy efficiency rating: Pending
  • Distance to amenities: 1 km
  • Distance to airport: 15 km
  • Distance to sea: 200 m
  • Distance to public transport: 500 m
  • Distance to schools: 2 km
  • Distance to resort: 500 m

Property description

Luxury 2-Bedroom, 2-Bathroom Apartment in Chloraka, Paphos

Experience elevated coastal living in Chloraka, Paphos, with this stylish 2-bedroom, 2-bathroom apartment on the fourth floor, just a short walk from the sparkling Mediterranean Sea. This contemporary residence offers open-plan living spaces with direct access to a large veranda, allowing residents to enjoy natural sunlight, fresh sea breezes, and stunning coastal views. The apartment combines modern comfort with timeless Mediterranean architectural elements for a truly serene lifestyle.

Community & Amenities
Set within a secure, gated community, residents benefit from beautifully landscaped gardens, communal swimming pools, a fully equipped clubhouse, and sports facilities including a tennis court. The clubhouse features a bar, café, social lounge, meeting rooms, management offices, and after-sales services, catering to both leisure and business needs.

Mediterranean Design Elements
The apartment embraces traditional Mediterranean design, including stone and plaster finishes, wooden accents, tiled roofs, earthy tones, and expansive outdoor living spaces, creating a harmonious blend of elegance, comfort, and coastal charm.

Property Details

Total covered area: 95 m²

Covered internal area: 77 m²

Uncovered veranda: 18 m²

Bedrooms: 2

Bathrooms: 2

Floor: 4th

Delivery Date: Estimated in approximately 18 months

Frequently Asked Questions (FAQ)

Where is the apartment located?
The property is on the fourth floor within a hilltop gated community in Chloraka, just a short walk from the Paphos coastline and Mediterranean Sea.

What type of apartment is it?
A modern 2-bedroom, 2-bathroom apartment with open-plan living areas, large veranda, and direct access to outdoor spaces.

Does the apartment maximize light and airflow?
Yes, the interiors are designed to allow natural sunlight and fresh air throughout the living spaces.

What communal facilities are available?
Landscaped gardens, communal swimming pools, a tennis court, and a fully equipped clubhouse.

What amenities does the clubhouse offer?
Bar, café, social lounge, meeting rooms, management offices, business centre, and after-sales support.

Are there Mediterranean design elements?
Yes, including stone and plaster finishes, wood accents, tiled roofs, earthy colors, and landscaped gardens.

Is the community gated?
Yes, providing privacy, security, and peace of mind for residents.

Can the clubhouse be used for events?
Yes, it offers versatile indoor and outdoor spaces suitable for social gatherings and private events.

Live the Mediterranean dream with breathtaking views, spacious living, and timeless design in Chloraka, Paphos.

Features

  • Aircondition, Split system
  • Heating, Underfloor
  • Pool, Communal
  • Childrens playground
  • Gym
  • Landscaped garden
  • Veranda
  • Distressed property
  • Rental potential
  • Luxury specifications
  • Modern design
  • Near bus route
  • Near amenities
  • Open plan
  • Garden
  • Balcony
  • Entrance gate
  • Spacious rooms
  • Easy access to main roads
  • Easy access to highway
  • Sound insulation
  • Entrance hall

Similar properties

New Three-Bedroom Apartment in Sought-After Chloraka Area, Paphos , for sale

New Three-Bedroom Apartment in Sought-After Chloraka Area, Paphos , for sale

Chlorakas, Paphos
  • 3 Beds
  • 2 Baths
  • Ref: 32367
€375,000+VAT
Contemporary three bedroom Apartment with Sea Views in Prime Coastal Location

Contemporary three bedroom Apartment with Sea Views in Prime Coastal Location

Chlorakas, Paphos
  • 3 Beds
  • 2 Baths
  • Ref: 32356
€370,000+VAT
Two-Bedroom Apartment for Sale in Chloraka, Paphos – Modern Living with Garden & Terrace

Two-Bedroom Apartment for Sale in Chloraka, Paphos – Modern Living with Garden & Terrace

Chlorakas, Paphos
  • 2 Beds
  • 2 Baths
  • Ref: 32341
€502,000+VAT
Luxury two bedroom Apartments for Sale in Chloraka, Paphos – Sea Views & Mediterranean Living

Luxury two bedroom Apartments for Sale in Chloraka, Paphos – Sea Views & Mediterranean Living

Chlorakas, Paphos
  • 2 Beds
  • 2 Baths
  • Ref: 32337
€495,000+VAT
Great offer for sale,  two Bedroom Apartment fully furnished with Sea Views in Chloraka, Paphos.

Great offer for sale, two Bedroom Apartment fully furnished with Sea Views in Chloraka, Paphos.

Chlorakas, Paphos
  • 2 Beds
  • 2 Baths
  • Ref: 32336
€506,600+VAT
Two Bedroom Apartment for Sale in Central Paphos | Modern Living with Pool & Parking

Two Bedroom Apartment for Sale in Central Paphos | Modern Living with Pool & Parking

Pafos, Paphos
  • 2 Beds
  • 2 Baths
  • Ref: 32213
€419,500+VAT
Contact us