🏒 Boutique Apartment Building for Sale in Apostolos Andreas, Limassol

  • Apostolos Andreas, Limassol
  • 7 Beds
  • 3 Baths
  • Ref: 29120
€1,050,000+VAT
Add to Favorites

Property details

  • Property type: Apartment Building
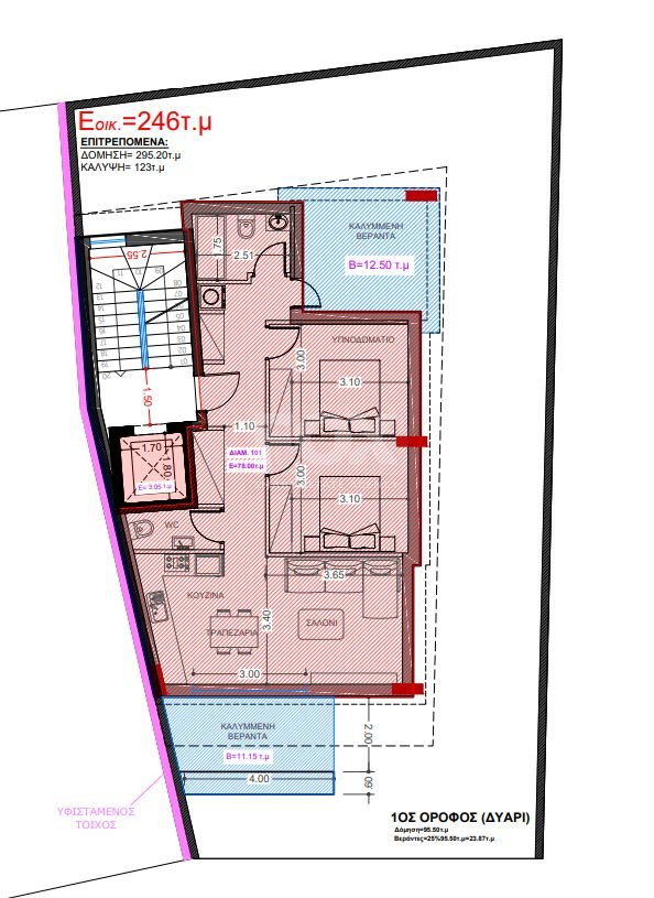
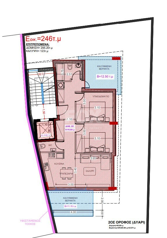
  • Total covered area: 327 mΒ²
  • Covered veranda area: 66 mΒ²
  • Bedrooms: 7
  • Bathrooms: 3
  • Toilets: 6
  • Floors: 3
  • Parking spaces: 1
  • Living rooms: 3
  • Kitchens: 3
  • Move in ready: 1 July 2026

Other information

  • Furnished: Unfurnished
  • Year of construction: 2025
  • Status: Under construction
  • Energy efficiency rating: Pending

Property description

πŸ’Ό Investor Opportunity – Boutique Residential Building in Central Limassol

Introducing a brand-new residential development comprising only 3 whole-floor apartments, located in the peaceful and highly sought-after area of Apostolos Andreas, Limassol. This building is designed for premium long-term or short-term rentals, high resale value, or even multi-generational family use.

The project is ideal for investors seeking:

Full ownership of an entire building

A turnkey asset in a high-demand residential area

High-end design with strong rental yield and capital growth potential

πŸ“Š Project Breakdown – Building Summary

Internal Covered Area: 253 mΒ² total (approx. 84.3 mΒ² per floor)

Covered Verandas: 66 mΒ² total

Storage Areas: 8 mΒ² (allocated per unit)

Covered Parking Spaces: 3 (one per apartment)

Total Covered Area: 327 mΒ²

πŸ—οΈ Project Features

🏒 Three full-floor 2- or 3-bedroom apartments

πŸš— Private covered parking & storage for each unit

πŸŒ… Sea views from upper floors

🎯 Modern, minimalistic architectural design

🧱 High-end finishes & premium materials

πŸšͺ Security doors & video phone entry system

πŸ’§ Pressurized water system

πŸ›— Elevator access

πŸ“Έ CCTV infrastructure

⚑ VRV air conditioning & central heating provisions

πŸ”Œ Electrical shutters (bedrooms)

Energy Efficiency Rating: A

πŸ“ Location Advantages – Apostolos Andreas, Limassol

2 minutes to the Mediterranean Sea

2 minutes to the highway

10 minutes to city center & Limassol Marina

Surrounded by banks, business centers, schools, shops & services

Established residential zone = stable rental demand

🏦 Why Invest in this project?

βœ”οΈ Full-building ownership – ideal for portfolio investors

βœ”οΈ Boutique size = low maintenance & high flexibility

βœ”οΈ Location ensures rental stability and resale appeal

βœ”οΈ Limassol’s property market remains one of the strongest in Cyprus

βœ”οΈ Sea view units offer added rental/resale premium

βœ”οΈ Delivery in just 7 months from construction start – fast ROI potential

πŸ“ž Request full financials, floor plans, and a private investor pack.
Now accepting expressions of interest and pre-sale reservations.

Features

  • Aircondition, Provision
  • Parking, Covered
  • Elevator
  • Storage
  • Guest WC
  • Quiet area
  • Modern design
  • Near bus route
  • Near amenities
  • Double glazing
  • Open plan
  • City view
  • Balcony
  • Easy access to main roads
  • Easy access to highway
  • Bath

Similar properties

Residential Building for Sale in the Heart of Limassol Town Centre

Residential Building for Sale in the Heart of Limassol Town Centre

Katholiki, Limassol
  • Ref: 31641
€750,000
Residential Building for Sale in Kapsalos: Ideal for Development

Residential Building for Sale in Kapsalos: Ideal for Development

Kapsalos, Limassol
  • 7 Beds
  • 5 Baths
  • Ref: 26404
€870,000
BUILDING IN MESA GEITONIA WITH READY ARCHITECTURAL PLANS & PERMITS FOR NEW DEVELOPMENT.

BUILDING IN MESA GEITONIA WITH READY ARCHITECTURAL PLANS & PERMITS FOR NEW DEVELOPMENT.

Mesa Geitonia, Limassol
  • Ref: 25888
€830,000
Building For Sale In Agia Trias Limassol Cyprus

Building For Sale In Agia Trias Limassol Cyprus

Agia Trias, Limassol
  • 8 Baths
  • Ref: H-114269
€1,250,000
Contact us